令和8年2月市営住宅入居者募集
更新日:2026年1月26日
市営住宅入居申込案内
佐久市営住宅は、国と佐久市が協力して「公営住宅法」および「特定優良賃貸住宅の供給の促進に関する法律」の規程に基づき整備した住宅です。
公営住宅は住宅に困窮する低額所得者に低廉な家賃で賃貸し、また、特定公共賃貸住宅は中堅所得者に優良な賃貸住宅の供給を拡大することにより、市民生活の安定と社会福祉の増進を目指しています。
市民の財産である住宅を賃貸し市民相互で助け合うためのもので、申込みには条件があります。
住宅にお困りの方は、案内をお読みいただいた上でご相談ください。
令和8年2月募集の市営住宅
| 団地名 | 建設年度 | 構造 | 規模 | 家賃 | 入居人員 | 募集戸数 | 所在地 |
|---|---|---|---|---|---|---|---|
| 花園団地 | 平成7年度 | 中層耐火 | 3DK | 19,600円から | 2人以上 | 1戸 | 岩村田 |
| 泉団地 | 平成12年度 | 中層耐火 | 3DK | 24,300円から | 2人以上 | 1戸 | 前山 |
| 泉団地 | 平成14年度 | 中層耐火 | 3DK | 24,600円から | 2人以上 | 1戸 | 前山 |
| 中込団地 | 平成1年度 | 中層耐火 | 3DK | 18,200円から | 2人以上 | 1戸 | 中込 |
| 下越団地 | 平成6年度 | 中層耐火 | 3DK | 23,300円から | 2人以上 | 1戸 | 下越 |
| 御馬寄団地 | 昭和41年度 | 簡易耐火 | 2K | 8,700円から | 1人以上 | 2戸 | 御馬寄 |
注1:家賃は一般階層世帯月額家賃を表示しています。
注2:御馬寄団地はリフォーム工事済みです。
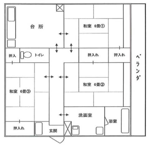
市営住宅間取り等を掲載します(現状と異なる場合があります。)。
受付期間
令和8年2月2日(月曜日)から令和8年2月9日(月曜日)まで
※期間中の平日、午前8時30分から午後5時15分までの間に、佐久合同庁舎4階、長野県住宅供給公社佐久管理センターでお申し込みください。
抽選会
募集戸数を超える申し込みがあった場合は、公開抽選により入居者を決定します。
抽選日 令和8年2月16日(月曜日)
入居指定日
令和8年3月1日(日曜日)
入居資格
次の条件を全て満たす方が市営住宅に入居できます
- 同居親族があること(条例で定める者に限り単身可の住宅があります)
- 収入が「佐久市営住宅条例第6条第1項第2号」に定める金額を超えていないこと
- 住宅に困窮していることが明らかであること
- 佐久市に在住しているか、佐久市内に勤務先があること
- 市税等の滞納が無いこと
- 入居指定日に入居可能であること
- 入居申込者及びその同居者となる方が暴力団員ではないこと
入居が決定した場合は、連帯保証人(資格要件があります)1人が必要となります。
なお、特別の事情があると認められる方については、連帯保証人が免除となる場合があります。詳しくはお問い合わせください。
お問い合わせ・申込み先
長野県住宅供給公社 佐久管理センター
佐久市跡部65番地1 佐久合同庁舎4階
電話:0267-78-5410
地震保険料(家財適用)の割引に係る公営住宅等の建築年の証明(Word:27KB)
随時募集中の団地
●定期募集で応募のなかった市営住宅は、先着順にて入居申込みを受付けています
PDF形式のファイルを開くには、Adobe Acrobat Reader DC(旧Adobe Reader)が必要です。
お持ちでない方は、Adobe社から無償でダウンロードできます。
Adobe Acrobat Reader DCのダウンロードへ








