浅科会館
更新日:2025年7月18日
浅科会館(浅科公民館)の移転について
浅科支所複合施設の建築に伴い、令和3年3月に浅科会館(浅科公民館)は移転しました。
カーナビや地図案内ソフト等では旧浅科会館に案内されることがありますのでご注意ください。
更新されていないカーナビ等をご使用される場合は、同所在地の佐久市浅科支所(佐久市甲1359番地3 電話番号0267-58-2001)を検索してください。
お問合せは、浅科公民館(浅科会館内)電話番号0267-58-3957にお願いいたします。
浅科会館外観
可動間仕切りを開けて一体利用が可能な会議室のほか、茶道学習用の水屋を設けた和室や電気窯を備えた創作室、音楽室など、目的や用途に応じた利用ができます。
所在地
〒384-2104
佐久市甲1359番地3
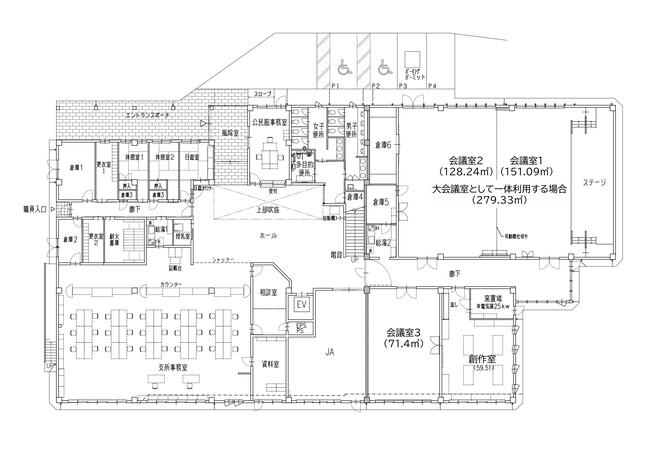
施設平面図
1階平面図
2階平面図
使用料等
| 諸室名 | 使用料 | 冷暖房使用料 | 収容人数(目安) | 備考 |
|---|---|---|---|---|
| 会議室1 | 580円 | 140円 | 60人 | (注1)三面鏡 |
| 会議室2 | 790円 | 120円 | 90人 | (注1)三面鏡 |
| 会議室3 | 440円 | 70円 | 30人 | 三面鏡 |
| 会議室4 | 370円 | 60円 | 30人 | (注2)三面鏡 |
| 会議室5 | 320円 | 50円 | 30人 | (注2)三面鏡 |
| 和室1 | 170円 | 20円 | 12人 | (注3)姿見 |
| 和室2 | 130円 | 10円 | 8人 | (注3) |
| 音楽室 | 300円 | 50円 | 24人 | アップライトピアノ、三面鏡 |
| 創作室 | 400円 | 60円 | 24人 | 工作台4台 |
| 料理講習室 | 790円 | 70円 | 18人 | 調理台3台、上履き仕様(スリッパ有) |
| 食育室 | 270円 | 40円 | 20人 | 上履き仕様(スリッパ有) |
| 会議室1、2を一体使用 | 820円 | 260円 | 150人 | |
| 会議室4、5を一体使用 | 690円 | 110円 | 60人 | |
| 和室1、2を一体使用 | 300円 | 30円 |
20人 |
(注1.2)可動間仕切りをはずして、隣接する部屋と1室として使用できます。
(注3)襖をはずして、隣接する部屋と1室として使用できます。
(注4)創作室の使用に加え、電気陶芸窯を使用する場合は別途310円かかります。
※間仕切りをしていても隣接の部屋の音や声が聞こえる場合があります。
使用料および冷暖房費は1時間単位の金額です。
アップライトピアノ(音楽室)、三面鏡の使用は無料です。
料理講習室利用の際には、ふきん、台ふき、ごみ袋を持参してください。
入場料等の徴収を伴う使用の場合は、使用料が2倍、営利目的の使用の場合は、使用料が3倍となります。
館内貸出備品(無料)
- 会議室1,2専用マイク
- プロジェクター
- レーザーポインター
- 移動式ホワイトボード
- 案内板
- 軽量畳
- 軽量カーペット
- 譜面台
- 電気茶釜
利用予約受付について
利用時間
原則として午前9時から午後10時までの間で1時間単位
(準備や片付けの時間も含みます)
予約受付
各部屋の使用予約は半年ごとの受付となります。
・4月から9月使用分・・・前年の10月中旬から受付開始
・10月から3月使用分・・・4月中旬から受付開始
予約方法
お電話いただくか、公民館事務所窓口までお越しください。
1度に3日以上まとめて予約する場合は、電話ではなく窓口にお越しいただくようご協力をお願いいたします。
予約受付開始当日は、午前9時までに会場にお越しの方で予約順を決める抽選会を行います。抽選順に会場にて順次予約を受け付けますので、電話での予約はできません。
なお、予約にあたっては市及び公民館事業を優先しますのであらかじめご了承ください。
また、予約受付後に使用取消や時間変更等があった場合には必ずご連絡ください。
使用にあたって
使用にあたっては、使用上の注意事項に従い使用してください。
使用終了後には、モップ掛けによる室内の清掃、机・椅子等の整理整頓を行い、受付時にお渡しするチェックシートの各点検項目をチェックし、退出時に事務室へ提出してください。
敷地内は全面禁煙です。
申込方法
当会館を使用する場合は、使用許可申請書を提出してください。
また、使用料金は平日の午前8時30分から午後5時15分の間において、使用開始前までにお支払いください。
休館日
年末年始の12月29日から1月3日まで
予約申込・お問い合わせ
浅科公民館(浅科会館内)
電話 0267-58-3957
お問い合わせ
電話:0267-62-0671(生涯学習係・青少年係)0267-66-0551(公民館係)
ファックス:0267-64-6132(生涯学習係・青少年係)0267-66-0553(公民館係)
